Припливна установка Вентс МПА 3000 В ЕС А31 використовується для забезпечення приміщень свіжим повітрям через систему повітроводів. Ця модель має продуктивність до 2930 м³/год, підключається до каналів з перетином 600х300 мм. Повітря в агрегаті фільтрується та підігрівається в холодний період року за допомогою чотирирядного водяного нагрівача. Ця серія вентиляційних агрегатів обладнана ЕС-двигуном, що дозволяє регулювати продуктивність вентиляції у всьому діапазоні швидкостей.
Ця модель використовується в системах припливної вентиляції квартири, приватного будинку, магазину, офісу або іншого комерційного приміщення.
| Параметр | Величина |
| Напруга, В | 230 |
| Максимальна потужність вентилятора, кВт | 0,425 |
| Сила струму, А | 1,8 |
| Максимальна продуктивність, м3/год | 2930 |
| Кількість рядів теплообмінника | 4 |
| Діаметр підключення нагрівача, " | 1 1/8 |
| Рівень звукового тиску на відстані 3 метри, дБА | 52 |
| Діапазон температур повітря, яке переміщується, °С | -30...+40 |
| Ізоляція корпусу мінеральною ватою, мм | 30 |
| Клас фільтрації | G4 |
| Перетин повітроводу, мм | 600х300 |
| Маса, кг | 50 |

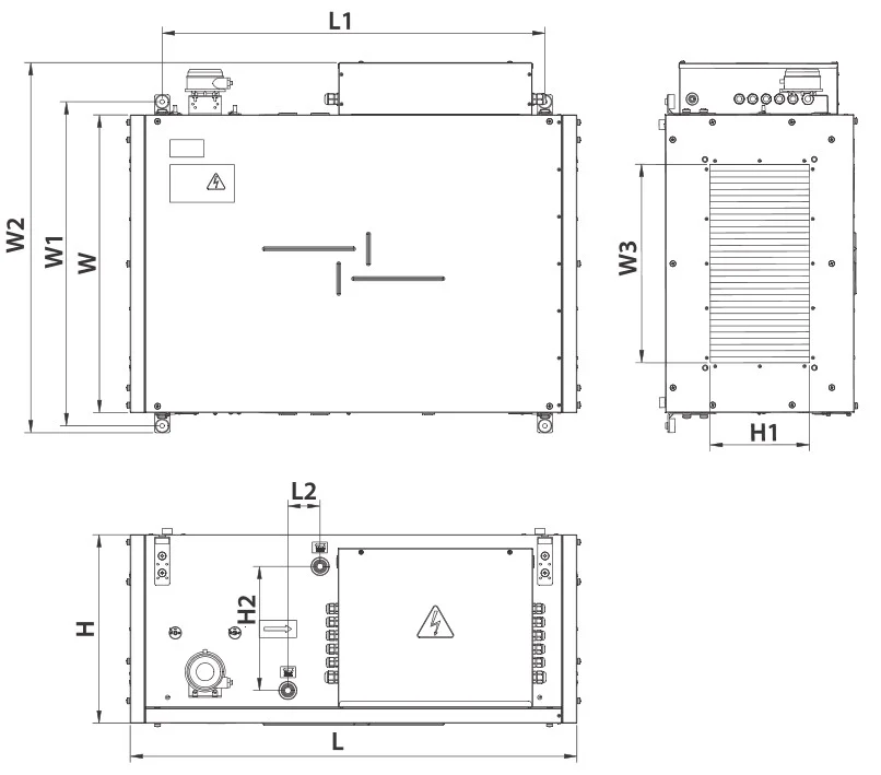
| L | W | H | L1 | L2 | W1 | W2 | W3 | H1 | H2 |
| 1200 | 800 | 500 | 1070 | 65 | 853 | 944 | 600 | 300 | 368 |
Установка розміщена в сталевому шумоізольованому корпусі з алюмоцинковим покриттям. Для зменшення рівня шуму від працюючого вентилятора через повітроводи та в навколишній простір внутрішня частина корпусу ізольована мінеральною ватою завтовшки 30 мм.

Переміщення повітря в системі забезпечує безкорпусний радіальний вентилятор з електронно-комутованим двигуном з зовнішнім ротором.
Це останнє покоління двигунів, яким притаманні такі властивості:
Двигун обладнаний тепловим захистом, який автоматично вимикає вентилятор при перевищенні робочої температури у випадку аварії.
В холодний період року агрегат підігріває повітря за допомогою водяного нагрівача, який має подвійний захист від перегрівання. Система автоматичного керування регулює витрату теплоносія через водяний нагрівач. Для роботи системи постачання теплоносія повинна виконуватися схема, яка наведена нижче (обладнання зі схеми до комплекту постачання не входить).

Для очищення свіжого повітря зі сторони вулиці та захисту вентиляційного обладнання від забруднення використовується фільтр грубого очищення з класом фільтрації G4. Цей елемент є замінним, періодично його потрібно чистити порохотягом або замінити при виході з ладу.
Припливний агрегат обладнаний контролером А31. Управління роботою системи вентиляції може здійснюватися таким чином:
За допомогою системи керування можна:

Для розрахунку параметрів нагрівача рекомендуємо скористатися таблицею у цьому файлі. За допомогою таблиці ви зможете:
(файл у форматі pdf, відкриється в новій вкладці)
| Загальні характеристики | |
| ЕС-двигун | є |
| Клас фільтрації | Клас G4 |
| Напруга | 220 В |
| Продуктивність | 2930 м³/год |
| Розмір прямокутного каналу | 600х300 мм |
| Тип калоріфера | Без нагрівача |